6122 Beach Rd
Johannesburg, Michigan 49751
$317,500
2bed Beds
1bath Baths
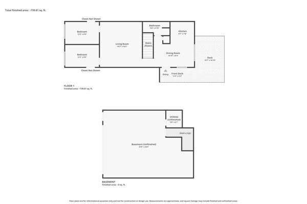
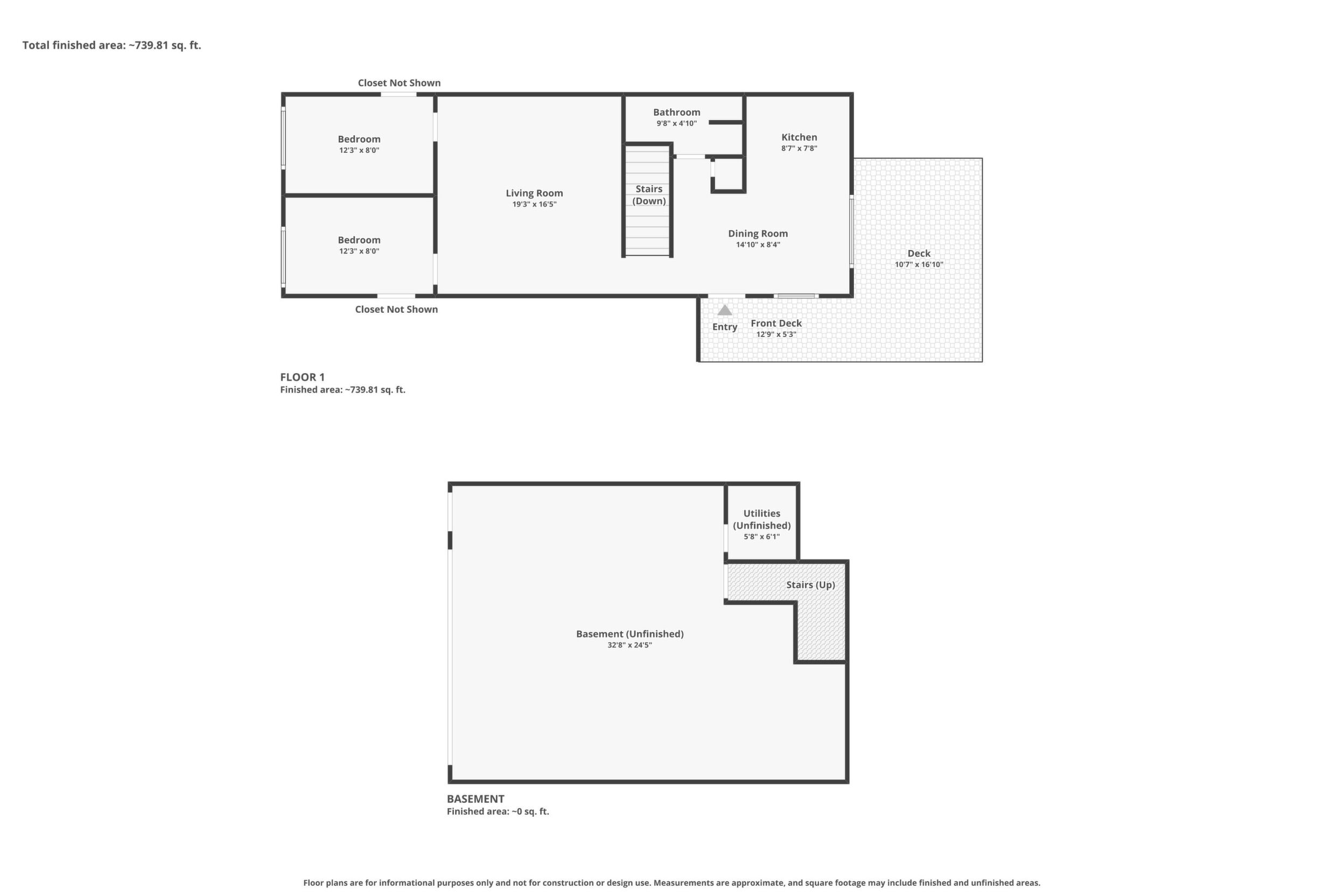
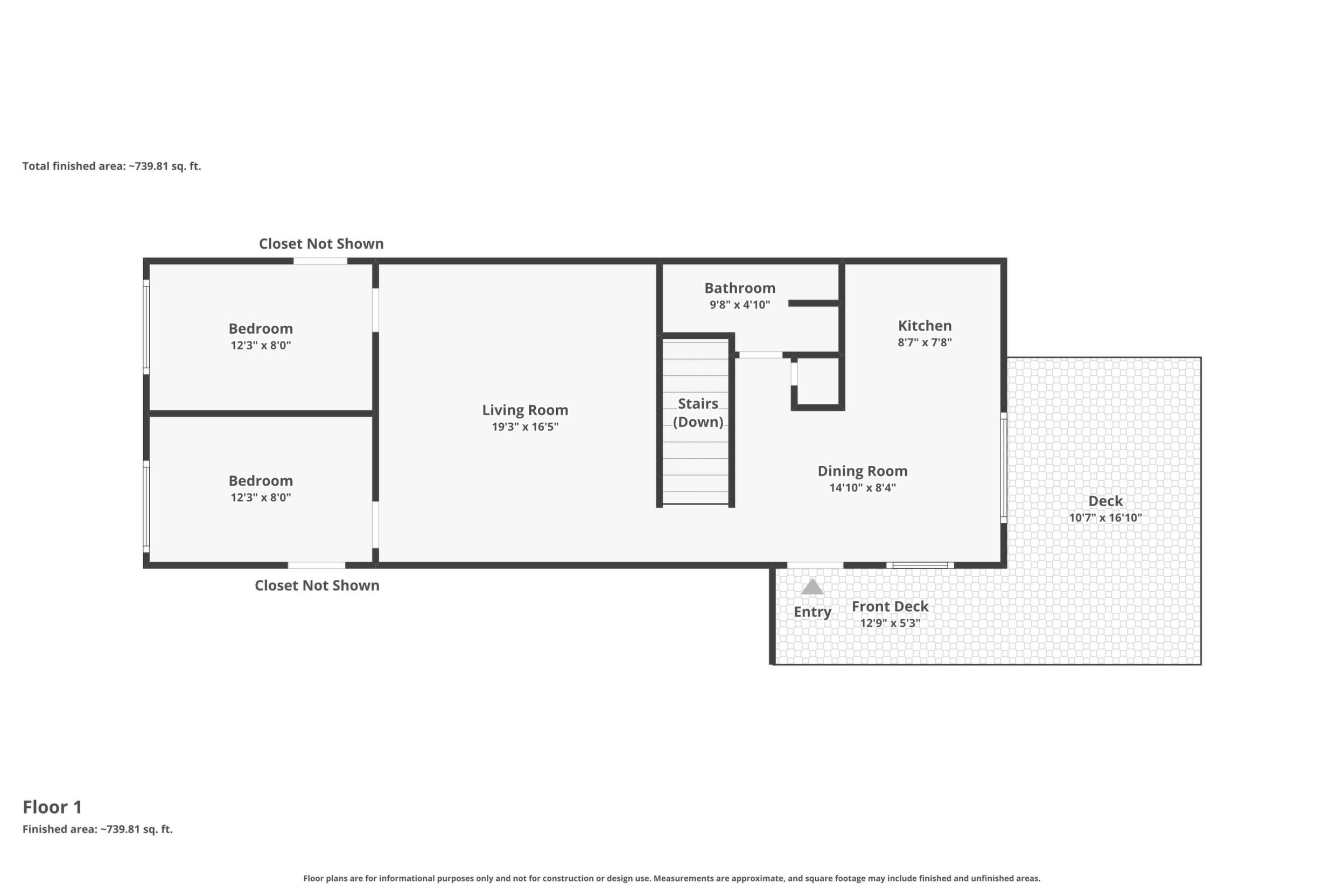
1,000 SQ. FT.
6122 Beach Rd
Johannesburg, Michigan 49751
$317,500
2bed Beds
1bath Baths
1,000 SQ. FT.
Overview
Features
Type
Single Family Home
Subdivision
2nd Add to Little Bear Lk
Garage
1
Price
$317,500
MLS#
201839545
Style
Cabin
Location
Local Weather
|
|
|
|
|
|
|
|
* This information is deemed reliable but not guaranteed and has not been verified